ASC Global is Moving Forward on Paradise Island Project
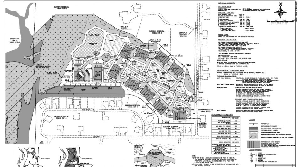
Paradise Island Phase One Design is now completed
Paradise Island Phase One Design is now completed
BRADENTON, FLORIDA / ACCESS Newswire / September 19, 2025 / ASC Global Inc. is a wholly-owned subsidiary of Token Communities (OTC ID / Stock Symbol:TKCM) is announcing the completion of the architectural design of Paradise Island's Phase One development project.

According to David Champ, president and CEO of the company that ASC Global Inc. executed a L.O.I. with American Software Capital (ASC) in October 2024 to acquire the Paradise Island Project in Florida, it is a 165 acres premium development site, consisted by a peninsula, two larger islands and several smaller islands. Paradise Island is located on Peace River, Arcadia, Desoto County, north of Charlotte Harbor and Gulf of America (South of Sarasota and North of Naples). The proposed Phase One development is located on the Peninsula part right off Sunny Breeze Road and Paradise Golf Course, it will have 180 units of high-end steel-structure waterfront town houses, restaurant, retail space, marina, community pool, scenic pond and others on 22 acres of the peninsula portion. A co-development plan is now being discussed between American Software Capital and ASC Global Inc.

For further information or assistance, please contact the company at (631) 397-1111


Forward-Looking Statements
Certain information set forth in this presentation contains "forward-looking information", including "future-oriented financial information" and "financial outlook", under applicable securities laws (collectively referred to herein as forward-looking statements). Except for statements of historical fact, the information contained herein constitutes forward-looking statements and includes, but is not limited to, the (i) projected financial performance of the Company; (ii) completion of, and the use of proceeds from, the sale of the shares being offered hereunder; (iii) the expected development of the Company's business, projects, and joint ventures; (iv) execution of the Company's vision and growth strategy, including with respect to future M&A activity and global growth; (v) sources and availability of third-party financing for the Company's projects; (vi) completion of the Company's projects that are currently underway, in development or otherwise under consideration; (vi) renewal of the Company's current customer, supplier and other material agreements; and (vii) future liquidity, working capital, and capital requirements. Forward-looking statements are provided to allow potential investors the opportunity to understand management's beliefs and opinions in respect of the future so that they may use such beliefs and opinions as one factor in evaluating an investment.
These statements are not guarantees of future performance and undue reliance should not be placed on them. Such forward-looking statements necessarily involve known and unknown risks and uncertainties, which may cause actual performance and financial results in future periods to differ materially from any projections of future performance or result expressed or implied by such forward-looking statements.
Although forward-looking statements contained in this presentation are based upon what management of the Company believes are reasonable assumptions, there can be no assurance that forward-looking statements will prove to be accurate, as actual results and future events could differ materially from those anticipated in such statements. The Company undertakes no obligation to update forward-looking statements if circumstances or management's estimates or opinions should change except as required by applicable securities laws. The reader is cautioned not to place undue reliance on forward-looking statements.
SOURCE: Token Communities Ltd.
View the original press release on ACCESS Newswire
O.Valdez--RTC